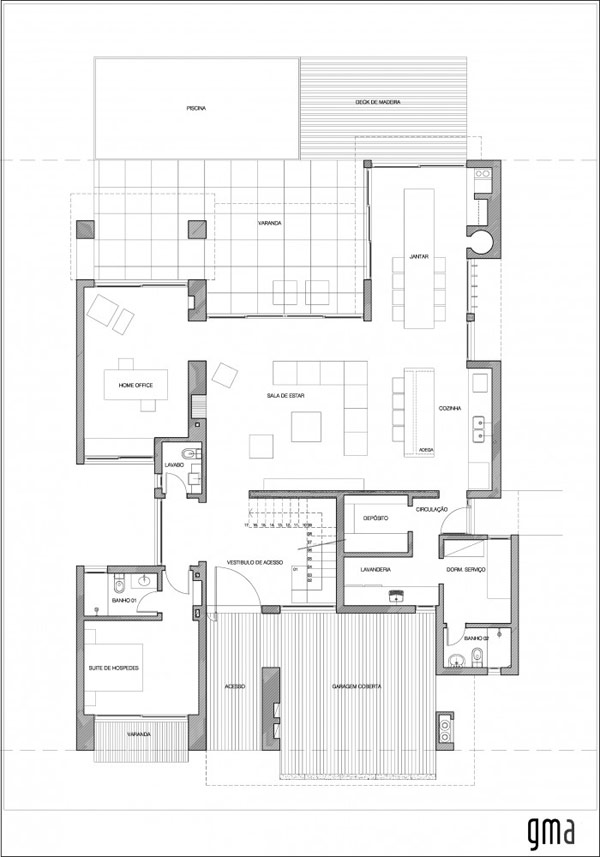
Casa CKN was designed by Giuliano Montero Architects and is located in Playa de Atlântida, Xangri-lá, Brazil. Spread over a total surface of 422,08 square meters, on a lot of 540 square meters, the imposing summer house was especially built for the entertainment of the residents and their guests.
Defined by uneven volumes, brick and red roof tiles, the exterior appearance of the residence is complemented by a swimming pool on one side, and by a paved pathway and a miniature car lane on the other. The interior design is a logical extension of the exterior, with tall brick walls and plenty of wood employed throughout. The heart of the project is the double-height living room, connected with all other spaces and “flanked” by two suites. Various terraces create a good indoor/outdoor relationship. Read more [ via : freshome ]
modern house plans
.jpg)
.jpg)
.jpg)
.jpg)




